Introductie
Tijdloze luxe in de Pijp
Laat je betoveren door de tijdloze luxe van The Hemony. Dit kleinschalige complex met zeven exclusieve appartementen op eigen grond, combineert klassieke elegantie met modern comfort. Geïnspireerd door de authentieke architectuur van het pand, biedt The Hemony een unieke woonbeleving in een van de meest bruisende buurten van Amsterdam.
Architectonisch Meesterwerk
Een ontwerp van architect Dimitri Langereis
The Hemony brengt de grandeur van de late 19e eeuw samen met hedendaags design. Het oorspronkelijke dubbelpand is met zorg gerestaureerd en uitgebreid, waarbij de karakteristieke architectonische elementen volledig tot hun recht komen. Hoge plafonds, symmetrische gevels met royale raampartijen en gedetailleerd metselwerk vormen de basis van dit meesterwerk.
Aan de achterzijde biedt de moderne uitbouw met een nieuwe hoofdentree en ruime balkons een hedendaags contrast. De entree, gelegen aan de Hemonylaan, is voorzien van een stijlvolle luifel met vegetatiedak die zowel esthetisch als functioneel is. Het pand heeft bovendien een centraal trappenhuis met lift, wat zorgt voor efficiënte indelingen en veel lichtinval in alle appartementen.
Er is mogelijkheid tot parkeren op eigen terrein.
Plattegronden
Indelingen op maat voor jouw levensstijl
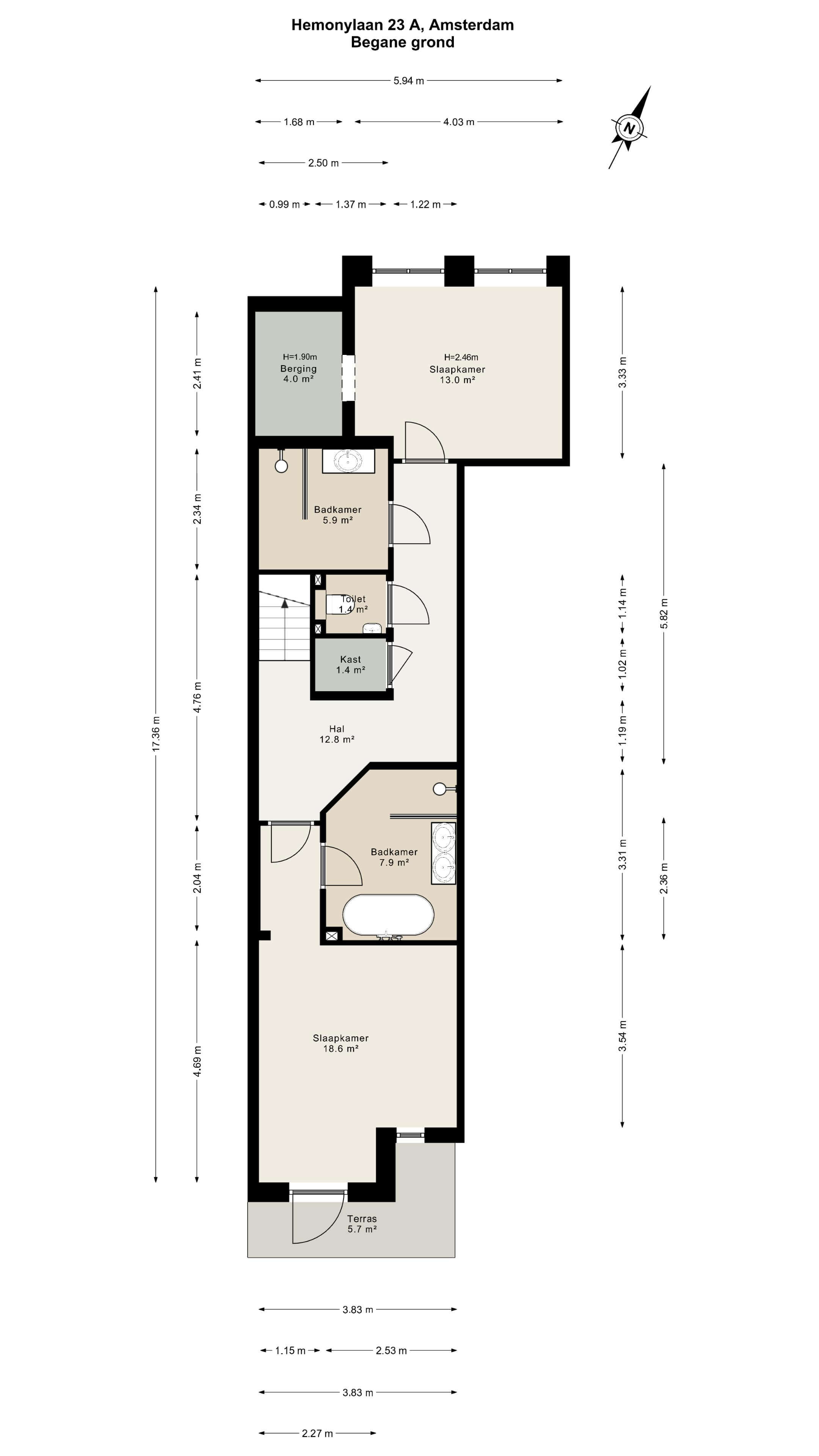
Elke woning in The Hemony heeft een unieke indeling die is ontworpen met oog voor functionaliteit en esthetiek. Van royale woonkamers tot praktische indelingen van slaapkamers en badkamers: de plattegronden zijn volledig afgestemd op moderne woonwensen.
Naast de ruimtelijke opzet van de appartementen zijn er ook aanpassingsmogelijkheden om de woning naar eigen smaak in te delen. Bekijk de gedetailleerde plattegronden en ontdek hoe jouw droomwoning er in The Hemony uit kan zien.
HEMONYLAAN 23 A, AMSTERDAM
ONDER OPTIE
HEMONYLAAN 23 B, AMSTERDAM
HEMONYLAAN 23 C, AMSTERDAM
VERKOCHT
HEMONYLAAN 23 D, AMSTERDAM
VERKOCHT
HEMONYLAAN 23 E, AMSTERDAM
HEMONYLAAN 23 F, AMSTERDAM
HEMONYLAAN 23 G, AMSTERDAM
VERKOCHT
Appartementen
Een combinatie van ruimte, licht en luxe
Elk van de zeven appartementen is uniek in indeling, met een woonoppervlak variërend van 80 m² tot 182 m². De woonkamers zijn gericht op het zuiden, waardoor ze baden in natuurlijk licht, terwijl de slaapkamers aan de rustige noordzijde liggen. Alle appartementen beschikken over vloerverwarming, hybride warmtepompen en balansventilatie met warmteterugwinning.
De ruime buitenruimtes – van balkons tot terrassen – maken het mogelijk om zowel binnen als buiten in stijl te genieten. Een thuis in The Hemony is meer dan wonen: het is een ervaring van ongeëvenaarde luxe.
Voorgevel
Achtergevel
Duurzaamheid en Comfort
Toekomstbestendig wonen in een authentiek/klassiek jasje
The Hemony is ontworpen met oog op de toekomst. Alle appartementen zijn voorzien van duurzame installaties zoals een hybride warmtepomp en zonnepanelen. Dankzij hoogwaardige isolatie, slimme technologieën zoals zonwering en ventilatiesystemen, én de toevoeging van airconditioning woon je hier niet alleen comfortabel, maar ook energiezuinig.
Bovendien zorgen details zoals het vegetatiedak, een groen balkonontwerp en de toepassing van natuurlijke materialen voor een harmonieuze integratie in de omgeving. Hier woon je met respect voor het verleden én de toekomst.
Locatie
Wonen in het Hart van Amsterdam
The Hemony ligt in het hart van De Pijp, een van de meest levendige en karakteristieke buurten van Amsterdam. Met het Sarphatipark, de beroemde Albert Cuypmarkt en talloze cafés, restaurants en boetieks op loopafstand van centrum / grachtengordel, biedt de locatie alles wat je nodig hebt voor een dynamische levensstijl. Bovendien zijn het stadscentrum en het openbaar vervoer uitstekend bereikbaar.
In de buurt
Sarphatipark
Museumplein
Albert Cuypmarkt
Contact
Meer weten over The Hemony?
Wil je meer informatie of een bezichtiging inplannen? Neem contact op met ons team via schothorst@heerenmakelaars.nl of bel ons op 06 534 366 95. Ontdek zelf de tijdloze charme van deze unieke appartementen.
